| Sign In | Join Free | My insurersguide.com |
|
Brand Name : Pego Electronics
Model Number : PG-UL1
Certification : Third-Lab Calibration Certificate
Place of Origin : China
MOQ : 1 set
Price : Negotiation
Payment Terms : T/T, PayPal
Delivery Time : 15 business days
Packaging Details : woodencase
Reference standard : IEC62368-1 annex Y.5.3/ figure Y.2, UL60507 figures 38.1 and 38.2
Configuration : 3 UL spray heads, water supply pipe rack, flowmeters
Control Units : NONE
Shipment : by sea
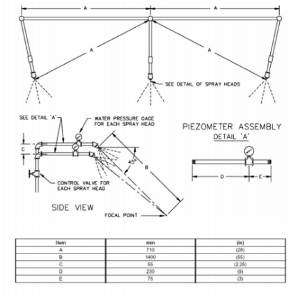
Water Spray Test Apparatus with Three Spray Head Mounted in a Water Supply Pipe Rack
1. Introduction
The UL water spray test equipment is designed according to UL60507-ENGL 1999 figures 38.1 and 38.2, ANSI Z21.10.3-2004, ANSIZ21.58 figure10/11 and CSA4.3-2004, IEC62368-1 annex Y.5.3/ figure Y.2, meets the requirement of UL498, UL1598, UL153, UL154B, UL103, UL8750, UL1741, UL514B, UL1278, UL1571 and etc.
The water spray test apparatus is to consisted of three spray heads mounted in a water supply pipe rack, the test is using fresh water. The outer enclosure is to be positioned in the focal area of spray heads so that the greatest quantity of water is likely to enter the outdoor enclosure, the water pressure is to maintained at 34.5kPa at each spray head, the outdoor enclosure is to be exposed to the water spray for 1h.
2. Features
1). For UL water spray test, with 3 UL water spray heads
2). The rack is made of molded aluminum material, which has a stable structure and is easy to clean.
3). Nozzle holder can be moved and freely lifted by hand-cranked stainless steel wheel device
4). The UL water spray head applied is original imported from UL lab, completely meet the requirement of UL standards.
5). The equipment is moveable with four wheels, and can be fixed with braker.
6). 4 pressure gauges to display the flow rate.
7). The figures of water-spray head piping and water spray head
3. Parameters
| Dimension | 1500mm*800mm *2000mm(L*W*H) |
| Height adjustable range | 1000~2000mm |
| Number o spray head | 3 |
| The distance between the water focal points and the ground | 0-1000mm |
| Flow rate | ≥10L/min |
| Total water pressure | 50~150Kpa |
| Water pressure at each spray head | About 34.5Kpa |
| Number of pressure gauge | 4 |
4. Figures


5. Frequently Asked Questions
1). What kind of water can be used?
Pego: Fresh water is required as per standard requirements.
2). Can the water recycled?
Pego: No, this is an open type equipment, the water cannot be recyled. But we have the chamber type equipment for option.
3). Will you provide the on-site installation service?
Pego: Actually, the equipment will no need on-site installation service. The equipment will be shipped almost as a whole, user just need to make simple wiring connection when receive the goods.
4). What is the warranty period? and how can we get the after-sales service?
Pego: The warranty period is 12 months upon user receive the goods. 95% of after-sales problems can be solved by our engineer team through remote service. Customers will get a response within 24 hours in business day after reporting the problem. In our experience, most of the troublesome can be removed with the guidance of our engineer, only a small part of the troublesome are caused by parts failure, that is because we use the branded components, which have better performance and good reliability. If the parts damaged, we will a send a new for replace, the new parts will be charged for free within the warranty period. And also our eigneer team will teach how to replace the damaged parts.
|
|
Water Spray Test Apparatus with Three Spray Head Mounted in a Water Supply Pipe Rack Images |